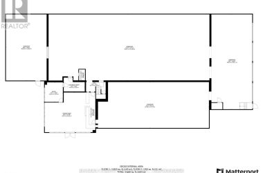
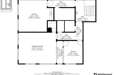
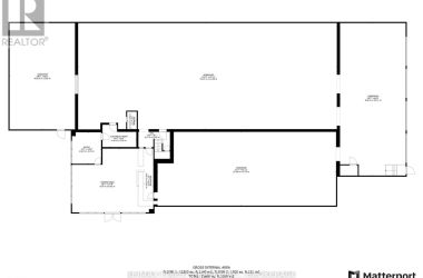
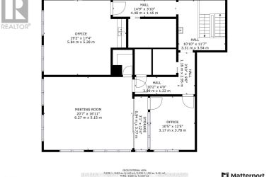
Formerly home to The Beer Store, Prime corner commercial property in Kingston, next to Optimist Baseball Field and Megaffin Park. Corner lot with 337 ft frontage on Cataraqui Street and 168ft on Bagot Street. The building totals 12,866 sf with a second-floor office of 1,467 sf. Main warehouse area is 9,192 sf, walk-in fridge 2,326 sf, and retail space 1,452 sf. Ceiling heights range 15-20 ft. Rear fenced area includes 3 loading docks. Current zoning allows schools, community centres, places of worship, and residential care facilities. An excellent opportunity for investors or end-users seeking space, visibility, and flexibility. (id:50836)
121 CATARAQUI STREET
$1,850,000
Koven Lifestyle Real Estate
On
