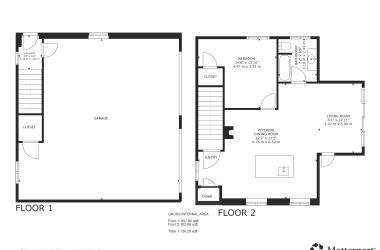
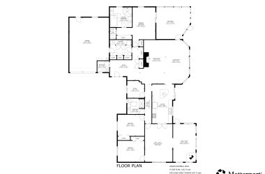
Client Remarks164A Deans Island Road offers a rare combination of expansive acreage, exceptional waterfront, and beautifully updated living spaces on the coveted Whitefish Lake-part of the Rideau Waterway. With approximately 500 ft of shoreline on the quiet channel leading into Morton Bay, this property delivers outstanding swimming, boating, and fishing, along with direct access to one of the region's most scenic stretches of the UNESCO designated Rideau system. Panoramic views of the lake and Rock Dunder create a breathtaking backdrop in every season. The main residence features vaulted ceilings and offers almost 3,000 sqft of well designed living space, featuring 4 bedrooms and 3.5 baths. The spacious primary suite offers the luxurious style ensuite you've been hoping for, with serene views and generous storage. A three season screened porch extends your living space outdoors, perfect for morning coffee or evening gatherings overlooking the water. A separate guest suite above the garage with approximately 1,000 sqft of living space features 1 bedroom and 1 full bath-ideal for extended family, visitors, or private workspace. The property includes both a 2 car attached garage and a second detached 2 car garage, plus a dedicated woodshed for year round convenience. Set on over 14 acres, the grounds are beautifully landscaped with stone features, rock gardens, and a charming herb garden. Outdoor living is enhanced by a striking stone fireplace, multiple seating areas, and natural pathways that lead toward the shoreline. Over the past decade, the owners have invested in a thoughtful series of upgrades that elevate both the home and the property-enhancing comfort, efficiency, and year round enjoyment while preserving the natural beauty and timeless character of this remarkable lakeside retreat.
164A Deans Island Road
$1,800,000
Koven Lifestyle Real Estate
Off
