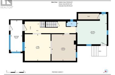
Charming home in Kingston's sought-after Inner Harbour neighbourhood, perfectly positioned for those who want to enjoy the energy of downtown living while maintaining a manageable, low-maintenance lifestyle. Located directly across from McBurney Park, this property offers beautiful green space and recreation literally steps from your front door, while still being just minutes from the restaurants, shops, and amenities of downtown Kingston. Inside, the home features 3 bedrooms and 1 bathroom, with surprisingly spacious living areas including a large kitchen and comfortable living space that provide excellent functionality for everyday living or entertaining. The brick exterior offers long-term durability, and the property's minimal yard keeps outdoor maintenance simple. A rare find for this location, the property also includes parking and a small garage-an increasingly hard-to-find feature in the Inner Harbour area. The combination of character, practicality, and location makes this home especially appealing to young professionals or couples seeking a vibrant downtown lifestyle at an accessible price point, as well as parent buyers looking for a smart investment for students attending nearby Queen's University. (id:50836)
196 ORDNANCE STREET
$579,900
Koven Lifestyle Real Estate
On
