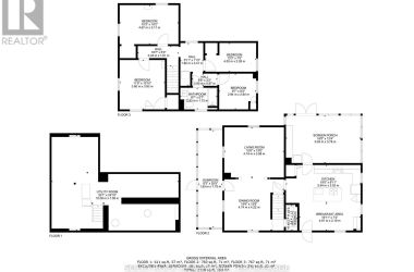
This beautifully maintained century home offers a seamless blend of historic charm and contemporary updates. The bright, welcoming kitchen features rustic accents, abundant cabinetry, and generous prep space, creating a warm and functional hub for everyday living. The open-concept living and dining rooms provide an easy, comfortable flow - perfect for hosting or unwinding at home. Start your day on the inviting three-season front porch or enjoy the peaceful side porch with views of the fully fenced yard, complete with an inground pool and hot tub. The upper level includes four well-sized bedrooms filled with natural light, a refreshed full bathroom, and the convenience of second-floor laundry. A stylish main-floor powder room adds practicality to the layout. At the rear of the property, a laneway accommodates parking for 2-3 vehicles and leads to an electrical-equipped workshop, ideal for storage or personal projects. Recent updates include a new furnace (2020), freshly painted kitchen (2025), and new side stairs and railing (2025).Offering comfort, character, and small-town warmth, this home perfectly pairs classic appeal with modern living. (id:50836)
204 KING STREET W
$479,900
Koven Lifestyle Real Estate
On
