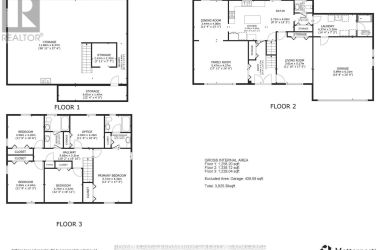
Nestled in Kingston's desirable Fairway Hill community, a gem backing directly onto the Cataraqui Golf and Country Club, this lovingly maintained home offers the perfect blend of privacy, prestige, and peaceful living-feeling like the countryside while being right in the city. Set on approximately one acre, the largest lot in Fairway Hills, this spacious property features five bedrooms on the upper level and three full bathrooms, making it ideal for families or those seeking flexible space. The home was custom built by the current owners and has been thoughtfully cared for over the years. Enjoy the convenience of a double car garage with indoor access, a double-wide driveway, and mature landscaping that frames the expansive backyard. Whether you're watching the sunrise over the fairways or hosting summer gatherings, the setting is truly exceptional. Located minutes from downtown Kingston, top schools, and everyday amenities, this home offers a rare combination of tranquility and accessibility. A must-see for those who value space, nature, and timeless care. (id:50836)
259 FAIRWAY HILL CRESCENT
$1,195,000
Koven Lifestyle Real Estate
On
