$239,000
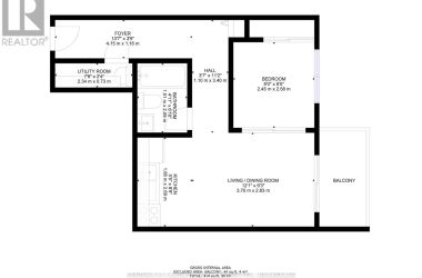
Come and enjoy this sweet, quiet, charming move-in ready cozy nest located in a peaceful community in the center of the city and close to many amenities! The unit offers a very practical layout and easy flow with a lot of natural light--- perfect for busy professionals, couples, downsizers, first-time buyers, or investors. Well-maintained inside and outside, accessible by staircase and elevator, with a private balcony and the view of Little Cataraqui Creek. Upgrades: bathroom (2021), kitchen floor (2021). (id:50836)
Koven Lifestyle Real Estate
On
