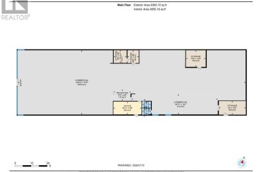
Position your business for success with this well-maintained, stand-alone commercial building ideally located on Napanee's main retail artery, just seconds from Highway 401. Offering approximately 8,500 square feet, the property is currently home to a retail furniture store and is thoughtfully configured to support a wide range of retail uses. Roughly 85% of the space is dedicated to bright, open retail showroom area, while the remaining 15% is efficiently divided between office and warehouse space to support daily operations. With excellent visibility, strong traffic exposure, and convenient highway access, this property presents an outstanding opportunity for an owner-occupied business or investor looking to establish a presence in a prime commercial location. (id:50836)
447 CENTRE STREET N
$1,500,000
Koven Lifestyle Real Estate
On
